Commercial Property with Dry Cleaning Business at Site for sale
Dry Cleaning Business with Land and Building for sale

****** ALL OFFERS INVITED*******
Asking Price : 4,000,000 (Negotiable)
Attn : Developers . Potential Unit site for sale. Next to station.

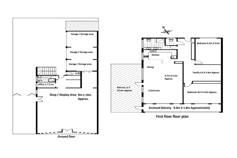
Outstanding opportunity to acquire a freestanding retail shop with a spacious first-floor residential 2 bedroom unit.., With Current Business Included Suit investor or owner occupier.

FEATURES:

+ Land area: 442 m² (approximately).
+ Zoning: E1
+ Walking distance to Railway Station, schools, public transport.
+ Perfect opportunity to add value (STCA).
Ideal for investment or owner occupation.
+ Currently tenanted, available vacant possession.

Note :-
1. Business at site has a Institutional contract(S) for Dry Cleaning services available for Transfer to new buyers.
    - Valued at $110,000 per contract. 
    - Business Annual Profit $600,000 as per financials.
2.Previous DA in Council for 16 apartment, not yet progressed and withdrawn.
3. FSR Changed recently and hence new buyers vendor considering revision of DA.
4. Sale price also includes business on the basis of Walk in Walk out incl Equipment and existing contract(s).

Disclaimer :- The consultant has relied on information provided by the Vendor. The Recipient cannot rely on information provided by the consultant and must verify the provided information through inspection of documents for the purpose of verification of these statements as part of the Recipient's due diligence.

Contact us on 02 91919733.